يأتي مشروع تصميم مجمع المكاتب الإدارية ضمن المشاريع التي تجسّد التوجه نحو بيئات عمل مبتكرة وفعّالة تعزّز التواصل والإنتاجية داخل المؤسسات الحديثة.
تولّت شركتنا مهام التصميم الداخلي الكامل للمجمّع بما يشمل توزيع المساحات، واختيار المواد والتشطيبات، وتصميم الأثاث والمناطق المشتركة، مع التركيز على تحقيق تجربة مستخدم مريحة ومتوازنة.
اعتمد التصميم على أسلوب عصري راقٍ يجمع بين الأناقة والبساطة، مع توظيف الإضاءة الطبيعية لإبراز اتساع المساحات وتوفير بيئة عمل محفّزة.
كما تم دمج عناصر الهوية البصرية للمؤسسة ضمن التصميم الداخلي من خلال الألوان والخطوط الهندسية التي تعكس طابع الشركة واحترافيتها.
نطاق العمل
-
تطوير مفهوم التصميم الداخلي (Design Concept) للمكاتب الإدارية.
-
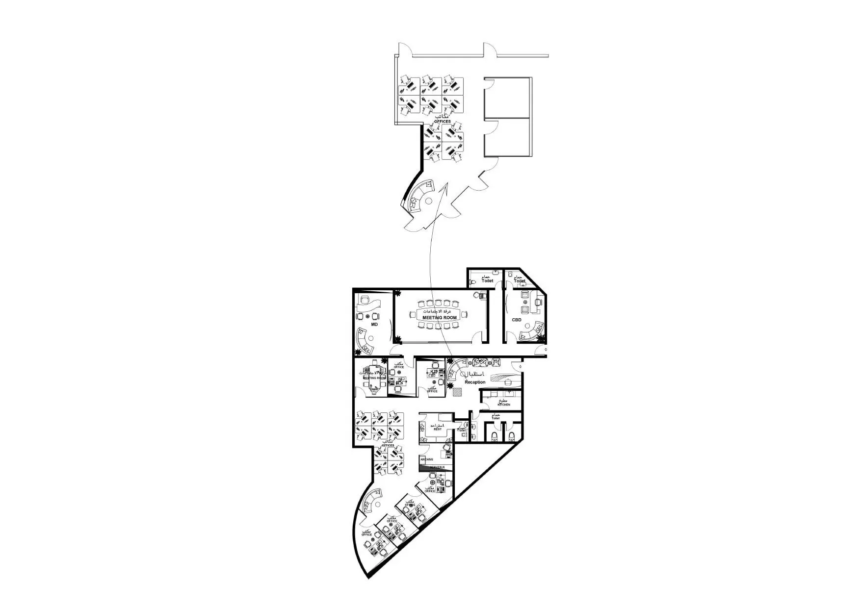
تصميم منطقة الاستقبال، المكاتب الفردية والجماعية، غرف الاجتماعات، والمرافق العامة.
-
اختيار مواد وتشطيبات حديثة تراعي الاستدامة وجودة الاستخدام.
-
إعداد الرسومات التنفيذية والتفاصيل الفنية لكافة العناصر الداخلية.
-
الإشراف على تنفيذ الأعمال ومطابقة الجودة والمعايير المعمارية.
أهداف المشروع
-
خلق بيئة عمل عصرية ووظيفية ترفع كفاءة الأداء والإنتاجية.
-
تحسين تجربة الموظفين والزوار من خلال توزيع متوازن للمساحات.
-
تعزيز الهوية المؤسسية عبر تصميم يعكس قيم الشركة واحترافيتها.
-
تطبيق مبادئ الاستدامة وكفاءة الطاقة في الإضاءة واختيار المواد.
صور المشروع:













المراجعات
لا توجد مراجعات بعد.